The college of europe tirana campus representation office
Year: 2022
Interior DesignOffice
















The College of Europe, Tirana Campus – Representation Office
In the heart of Tirana, within one of the striking cubic structures envisioned by the esteemed architectural firm MVRDV, lies the Representation Office of the College of Europe. These structures, born from a visionary revitalization project for the iconic Pyramid of Tirana, encapsulate the enduring architectural heritage of the communist era.
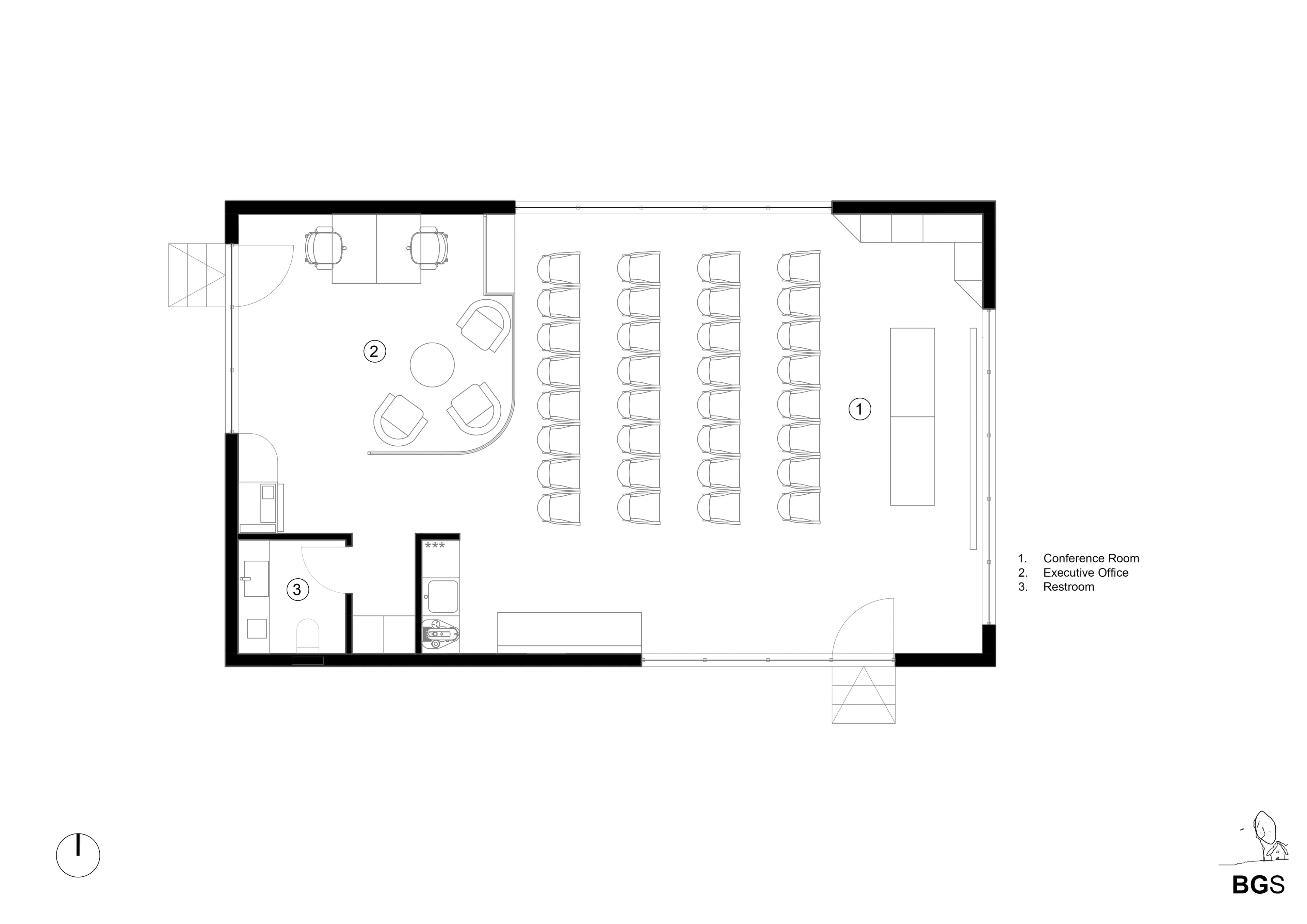
As a key facility of the institution’s new campus in Tirana (a project supported by the European Union), it offers a postgraduate program “Master of Arts in European Transformation and Integration – The EU and Southeastern Europe.” The design of this office echoes the spirit of the College of Europe in Bruges, Belgium, and Natolin/Warsaw, Poland. Designed to embrace natural light from all angles, the building’s distinctive architectural features inspired a purposeful interior design strategy. Glass partitions take center stage, allowing seamless daylight diffusion throughout the space. This luminous interior, juxtaposed against a verdant landscape and bathed in sunlight, creates an atmosphere of wooded tranquility. This ethereal ambiance fosters spontaneous interactions and engaging discussions, embodying a space where ideas come to life. Central to the design ethos is the open-plan layout, seamlessly integrating executive and administrative spaces, discreetly positioned on one side with a dedicated entrance. The public-facing reception area, an epitome of warmth and inclusivity, greets visitors with grace. Two strategically placed information desks stand as welcoming sentinels, ready to assist and guide guests, serving as essential points of contact.
Remarkably versatile, the reception area effortlessly transforms into a sophisticated conference space accommodating up to 40 attendees. This adaptability renders it perfect for presentations, hybrid meetings, and collaborative sessions, enhancing the functional utility of The Representation Office of The College of Europe, Tirana Campus.
Furthermore, a carefully curated selection of materials, such as carpet flooring, wooden wall panels, translucent curtains, and suspended metallic mesh from the ceilings, has been thoughtfully integrated to enhance the acoustic performance within the interior environment greatly. This meticulous attention to detail not only refines the auditory experience but also significantly elevates the overall quality of the space. The interior design endeavors of The Representation Office of The College of Europe in Tirana are intricately woven into the distinguished design narrative of the Pyramid project envisioned by MVRDV. Beyond being a mere architectural marvel, MVRDV’s project serves as a profound testament to the symbiotic relationship between architectural innovation and historical legacy. This interconnected narrative of achievements showcases how the brilliance of the past can seamlessly intertwine with the aspirations of the present, creating a space where history and modernity coexist, enriching the intellectual and creative pursuits of all who enter its doors.
